大人も子供も涌波っ子
心をゆったりとさせてくれるそんな場所
NEW
さぁその想いを今形にしよう









| 住所 | 金沢市涌波4丁目9-9 |
|---|---|
| 値段 | 1,567万円 |
| 物件種別 | 土地 |
|---|---|
| その他 | 1号地:278.22㎡(84.16坪) |
| 小学校 | 南小立野小学校 |
| 中学校 | 城南中学校 |
| 引渡日 | 相談 |
| 取引態様 | 売主 |
設備
電気:北陸電力
上水:引込予定
下水:引込予定
ガス:無し
特記事項
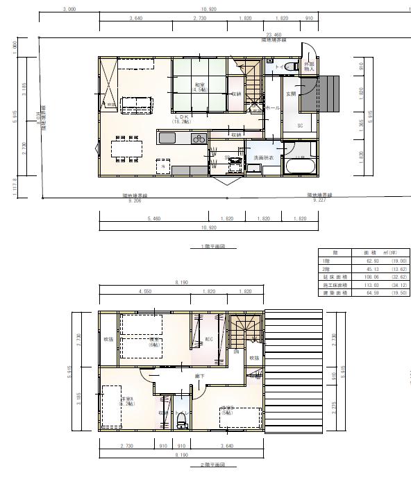
涌波建売プランのご紹介です♪
分譲住宅では3LDKが主流ですが、こちらはゆとりの4LDK。
ご家族のライフスタイルに柔軟に対応できる間取りです。
ポーチ横には、何かと便利な外部物入を完備。
玄関へ入ると、ゆったり広々としたシューズクロークがお出迎えしてくれます♪
その先に広がる解放感あふれる吹き抜けと18.2帖のLDK♪
明るく、家族が自然と集まる心地よい空間です。
解放感だけでなく、使いやすさも◎
各居室にはしっかり収納スペースを確保し、階段下収納も完備してます!
敷地の間口は5mあり、並列駐車可能です♪
暮らしのイメージがどんどん広がる、わくわくする住まいです♪
ご要望のプラン等がございましたら、お気軽にお問い合わせ下さい。
・総区画 3区画
・販売区画 1区画
・1号地 278.22㎡(84.16坪) 1567万円
・地盤耐力の調査および地盤補強工事費用は買主負担となります。
・分筆前のため、面積に増減が生じる可能性があります。
・指定仲介業者あり。
・各物件上下水負担金77万円は含まれた価格です。





お問い合わせ


access map
物件資料PDF
お問い合わせ